A palette of materials and pastel colours was chosen for the project that take inspiration from public buildings such as swimming pools, leisure centres, and railway stations. In these buildings glazed tiles are commonly used as a protective layer to prolong the lifespan of a building, while also conveying a feeling of richness on a budget. This material approach has been used in the designs to create a generous quality to the spaces, while also making sure the home is hardwearing.
Beacon House is externally tiled with handmade glazed tiles in a pink shade that complements the house's warm brick tones. These have been custom made for the project by Materials Assemble and each tile has been made using extruded clay and hand craftsmanship. The tiles are exactly scaled-up versions of the curved corner tiles found on the London underground, and the pink coloured glaze is the same as used in the Hammersmith and City Line stations.
We collaborated with local artists and crafts people to develop bespoke elements, that add texture and intrigue to the spaces. Bespoke patterned worktops were ordered for the kitchen, a hand painted number was commissioned for the front of the house, and the soft banquette seating was sewn by a local upholsterer.

Creating a long-term home which is better insulated, well ventilated, and more sustainable, was important to the family and us. The existing fabric of the building has been thermally upgraded throughout with new insulation, windows, and airtightness measures. The chosen palette of materials is made up of natural and recycled materials, which includes a natural linoleum flooring in the living area, bespoke patterned timber worktops, locally sourced low VOC paints, and recycled fabrics for the upholstery.
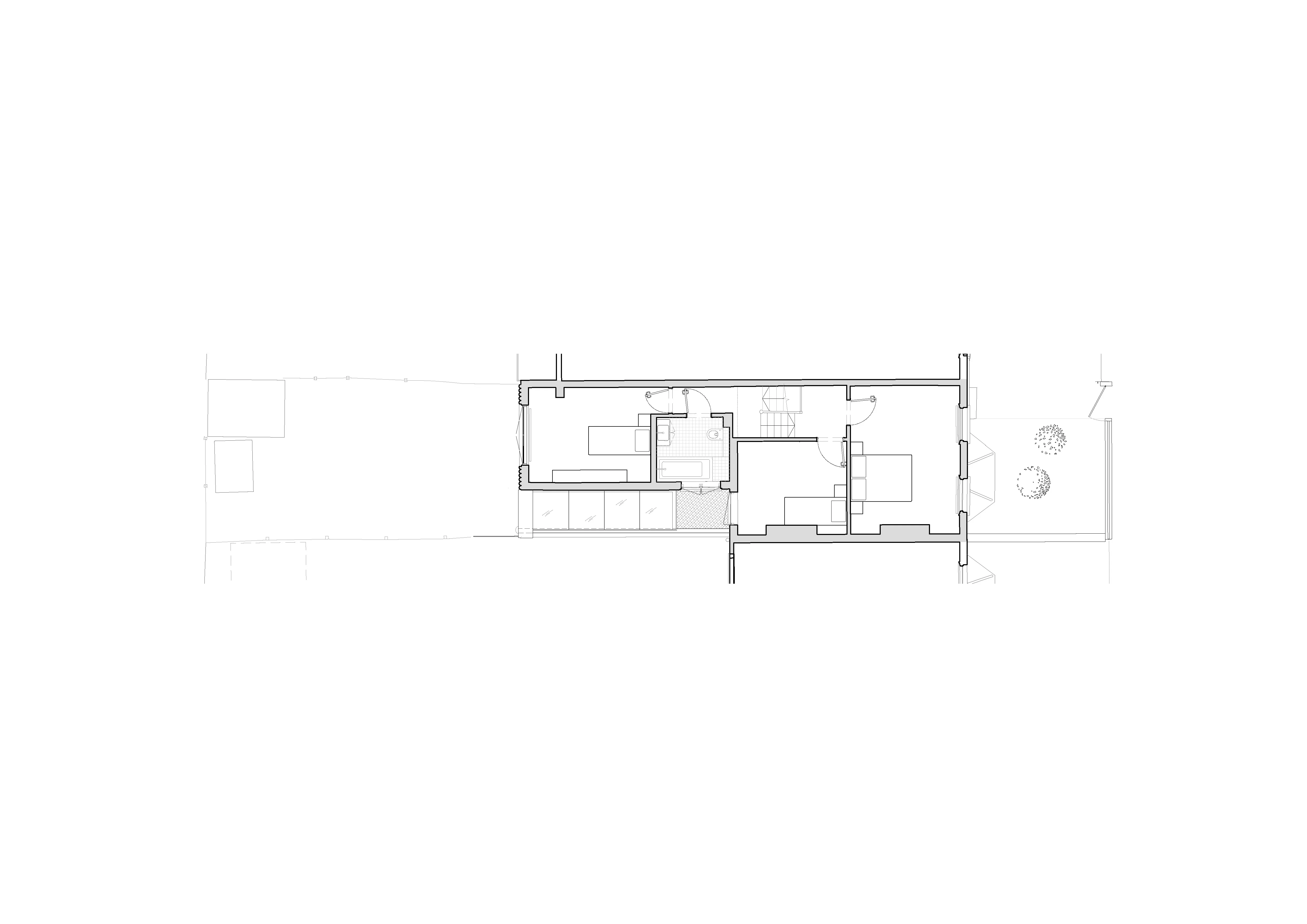
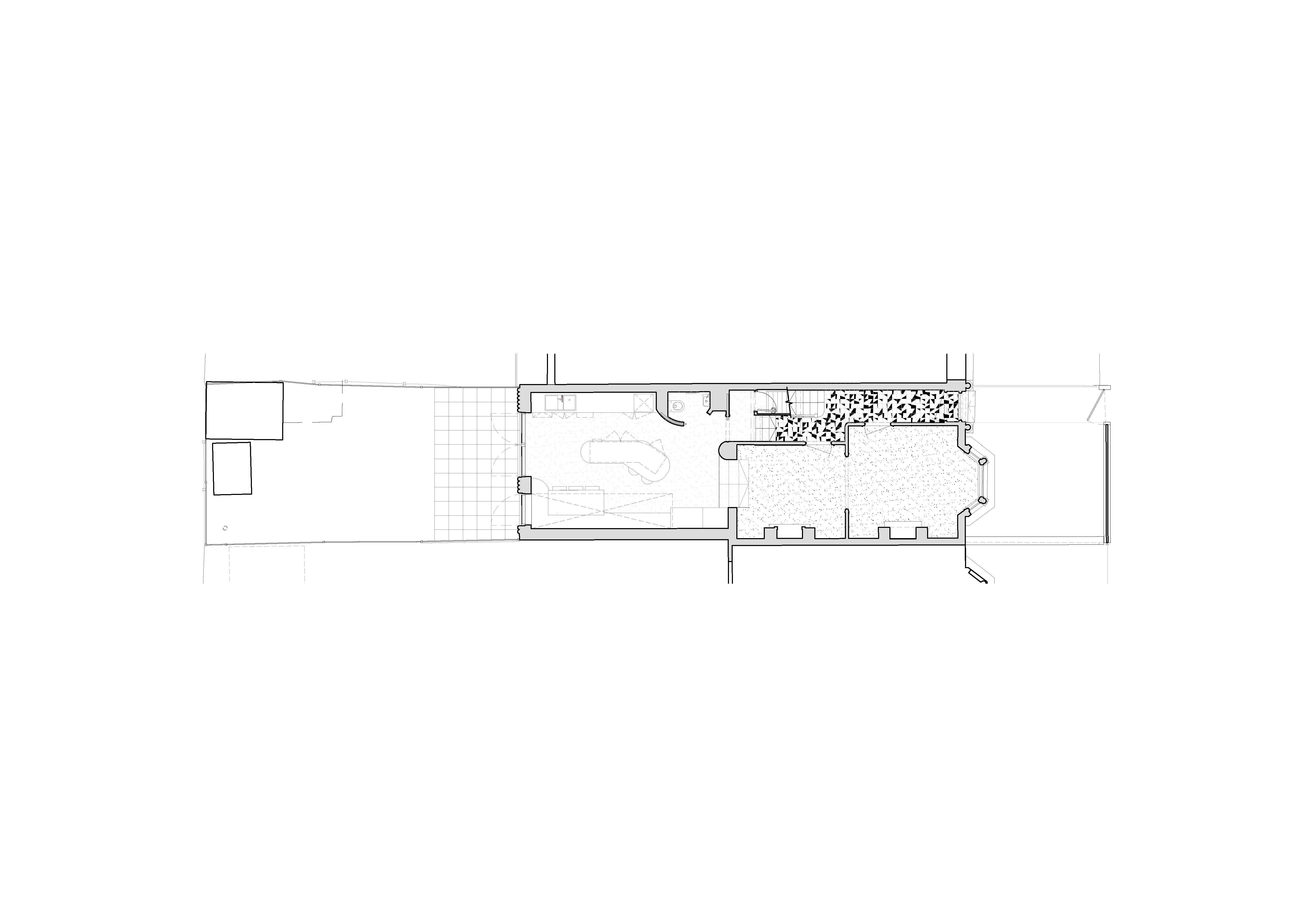
Curves feature throughout the house, from the curved walls and furniture in the kitchen to the rounded external tiles, which echo the generosity of municipal architecture. For example a curved wall allows for a spacious toilet on the ground floor without the need to have angular walls that protrude into the space, while the sliding door to the entrance of the WC is reminiscent of the curved sliding doors found on tube trains. A bespoke curved island is moulded perfectly around the needs of the family while also allowing a generous amount of circulation space around it.
The site slopes towards the garden allowing the house to open up progressively as you move through the spaces and descend into the kitchen and garden. At the same time the colour scheme offsets this descent, with warm darker tones in the high front room giving way to the light filled kitchen extension below.
To read in more detail about how we transform the homes of our residential clients, please click here.



Location: Haringey
Project: Residential refurbishment and extension
Client: Ella and Alex
Gross Internal Area: 120m2
Completed: 2023
2024 Don’t Move, Improve! Longlisted
The Metro
Living etc