During the last four years, Office S&M Architects have worked closely with the council and Green Street residents to make sure the new space is inviting and comfortable for people local to Green Street. We have co-designed the space with local people through focus meetings and online surveys, paid interviews and collage workshops, 1:1 drawings and even Minecraft! This will make sure the space is welcoming and fit for purpose for residents of Green Street.


The scheme is one of four projects that make up the Queen’s Market Good Growth Programme, which has been jointly funded by the Council, the Mayor of London, LEAP, and the Levelling Up Fund.
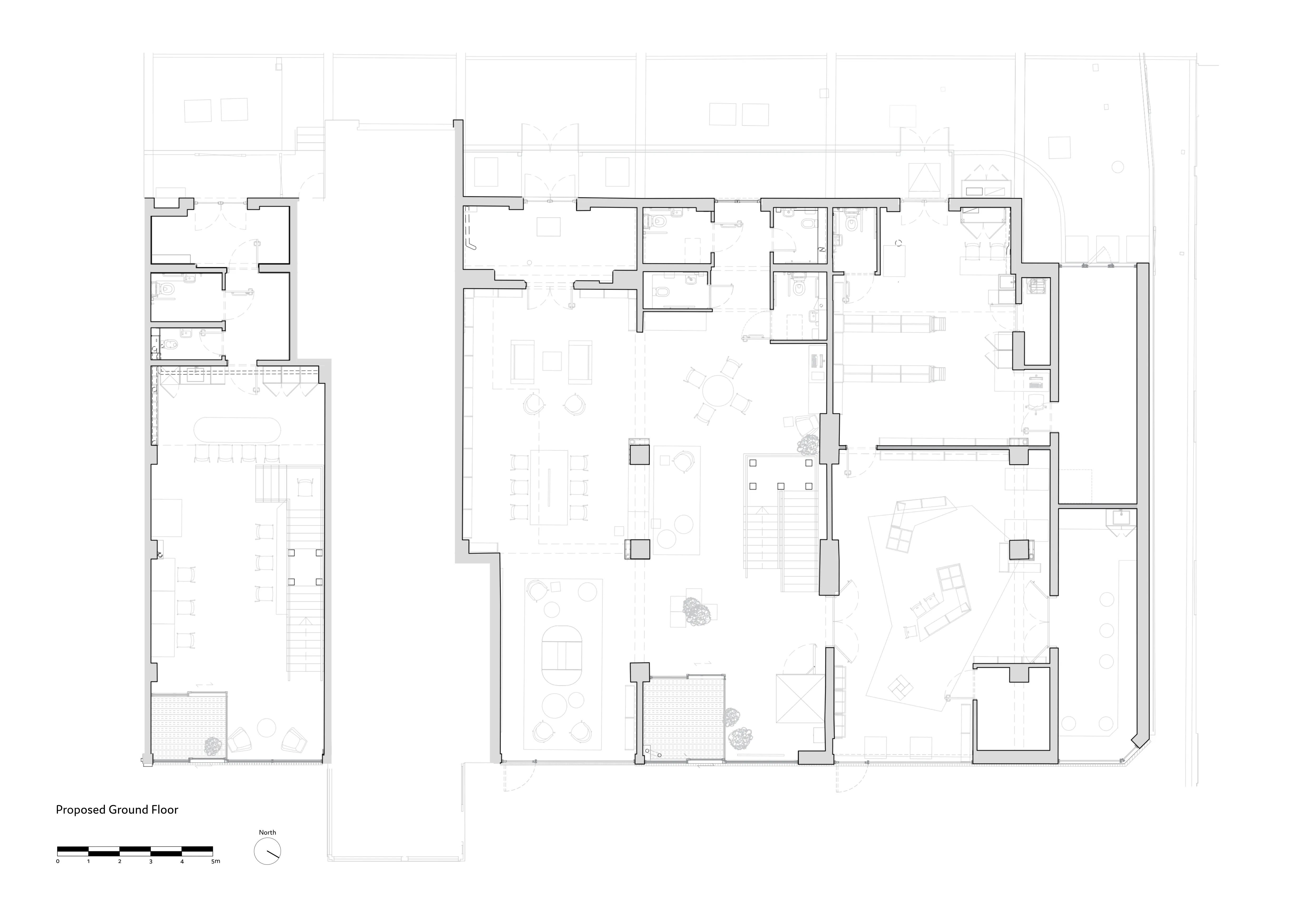
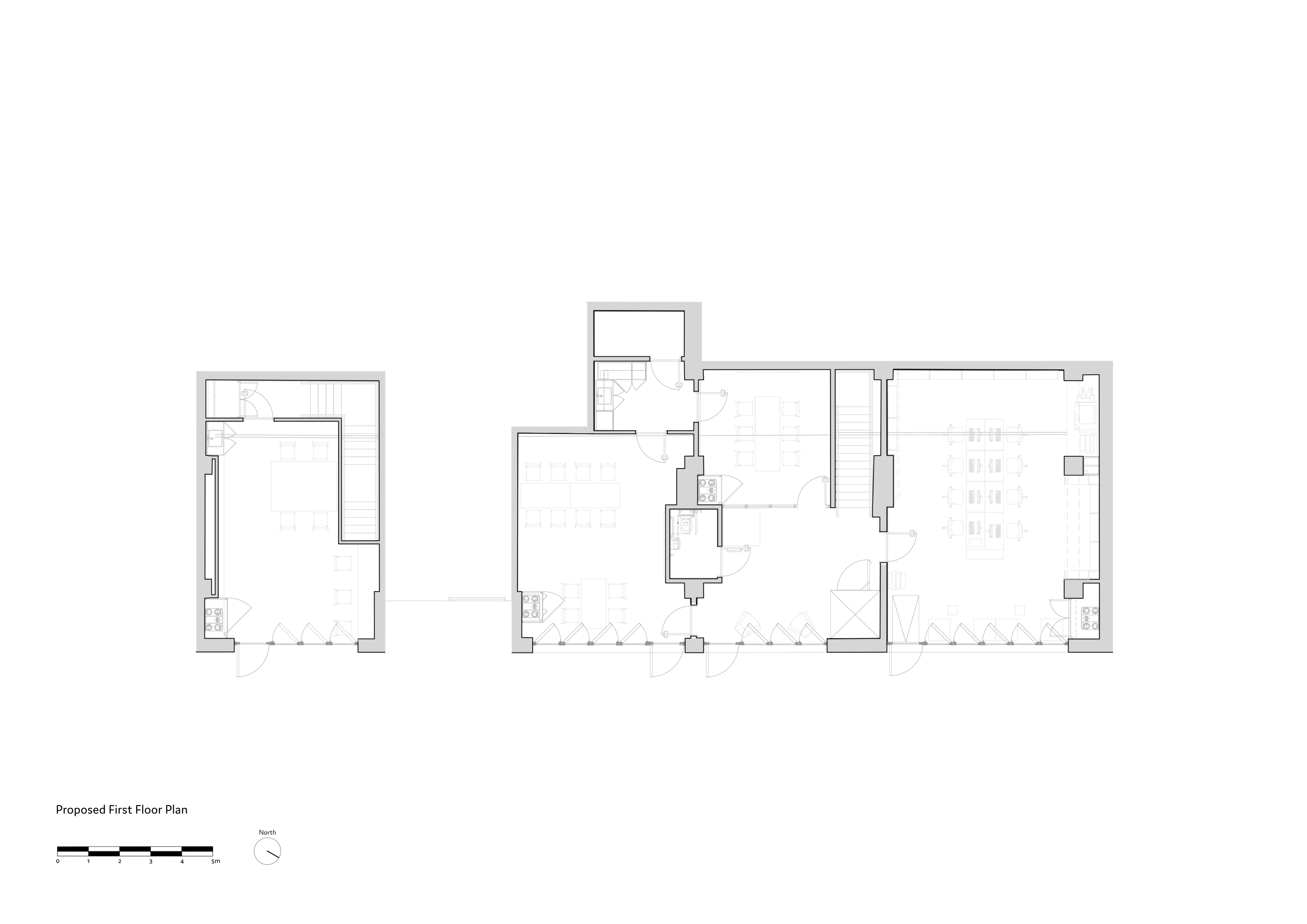
The building fronts onto Queens Square, and new windows will connect to the newly renovated square. The the centre of the scheme will become a new space for Green Street Library, while a separate unit will provide workspace for local people. On the first floor, community rooms provide flexible spaces.




The project will be delivered through community wealth building via local contractors, and Office S&M Architects has subcontracted its fee to local surveyors, consultants, and artists, and spent project money on materials, printing, and refreshments with local retailers.
Community wealth building is at the core of how the practice delivers its work, and the final space will have windows, stairs, and furniture made by local fabricators. This ensures money is put back directly into the pockets of local people, and is a key part of how we approach all projects.











Location: Newham, London
Project: Community space
Client: London Borough of Newham
Completed: May 2023
