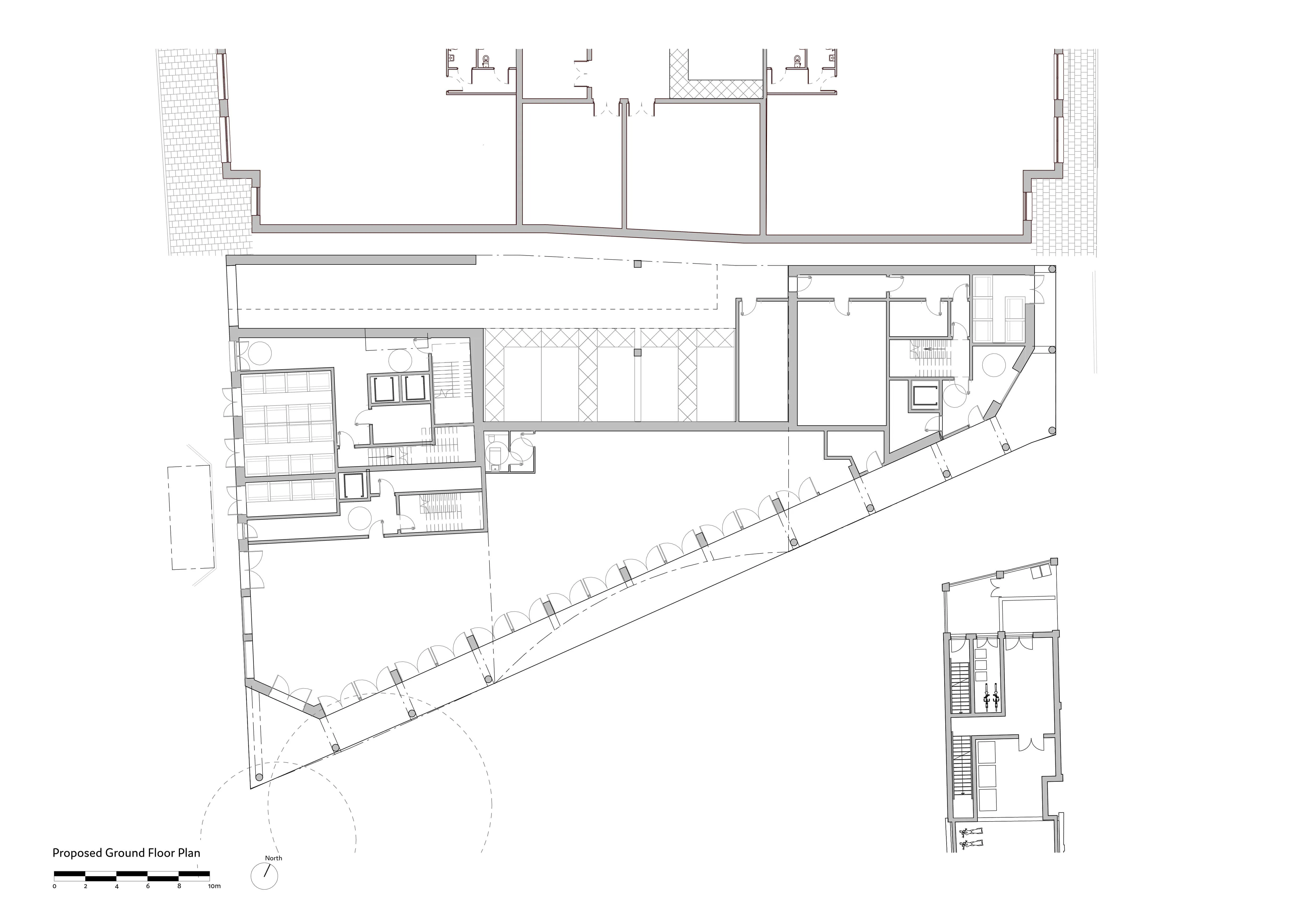
A number of site constraints were identified during the analysis, primarily due to the proximity of surrounding industrial buildings. These nearby industrial areas present challenges for creating active frontages and a cohesive streetscape. The design addresses these issues by introducing a centrally placed private podium, offering private amenity space and courtyard views. This podium helps mitigate any overlooking issues, ensuring privacy and comfort for residents.


The proposal enhances the site’s streetscape and permeability through the inclusion of active frontages and the creation of a new East-West pedestrian link externally to the proposed building. This addition helps connect the site with the surrounding area, improving access and walkability.


At ground level, public space is prioritized, with a communal first-floor podium that serves as a shared amenity for residents. The building itself is divided, with a private service core located to the north. This section houses residential access points, plant areas, and storage, while providing structural support to the podium above. The middle portion of the building reintroduces commercial spaces, including a ground-floor supermarket for local convenience.



Location: Greenwich, London
Client: De Micheals Investment