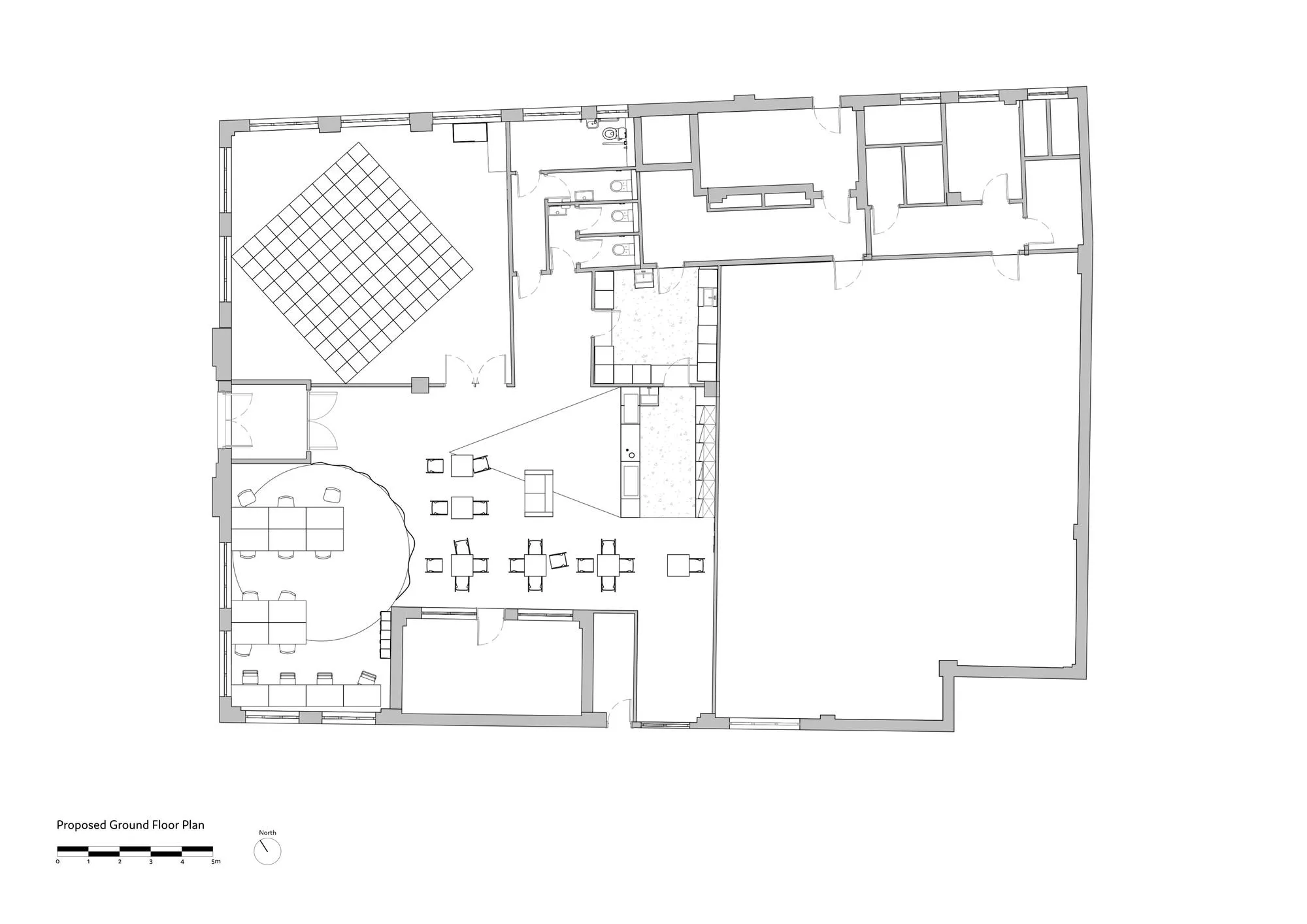
When we first teamed up with KindHaus, they were looking to expand their brand after the success of their first pop-up in Stoke Newington. Working within a fixed budget and timeframe, we collaborated closely to create a cohesive design that integrates these three distinct functions in one cohesive setting.
The aesthetic of KindHaus is a fusion of nature and geometric design—at the intersection of Bauhaus, West Africa, and biophilia. We used Bauhaus-inspired shapes to define each area, while the open structure allows for fluid transitions between spaces.


The creche takes inspiration from the Froebel approach to learning, offering multiple opportunities for different types of interaction. A variety of textures and forms encourage spontaneous exploration, empowering children to shape their own experiences.
The workspace is hidden in plain sight by an acoustic curtain that maintains clear sightlines to the creche while providing spatial and acoustic separation. The café bridges the creche and workspace, to create an informal area for parents to connect.
Sustainability is a key focus of the project. We prioritised the use of reclaimed materials and second-hand furniture from a network of local suppliers, to reduce the environmental impact of the fit out.
You can read more about how we work with education clients here.



Location: Stoke Newington, London
Client: KindHaus
