Office S&M and MEplace have collaboratively realised their third site together, with their trademark inviting design and gentle aesthetics combined to create a homely learning space. The space is designed to be bright and welcoming, with large windows and an Inviting design laid out to optimise natural light and views through the space. The nursery provides places for 45 children, as well as operating as a creche at weekends for the wider Battersea Power Station site.


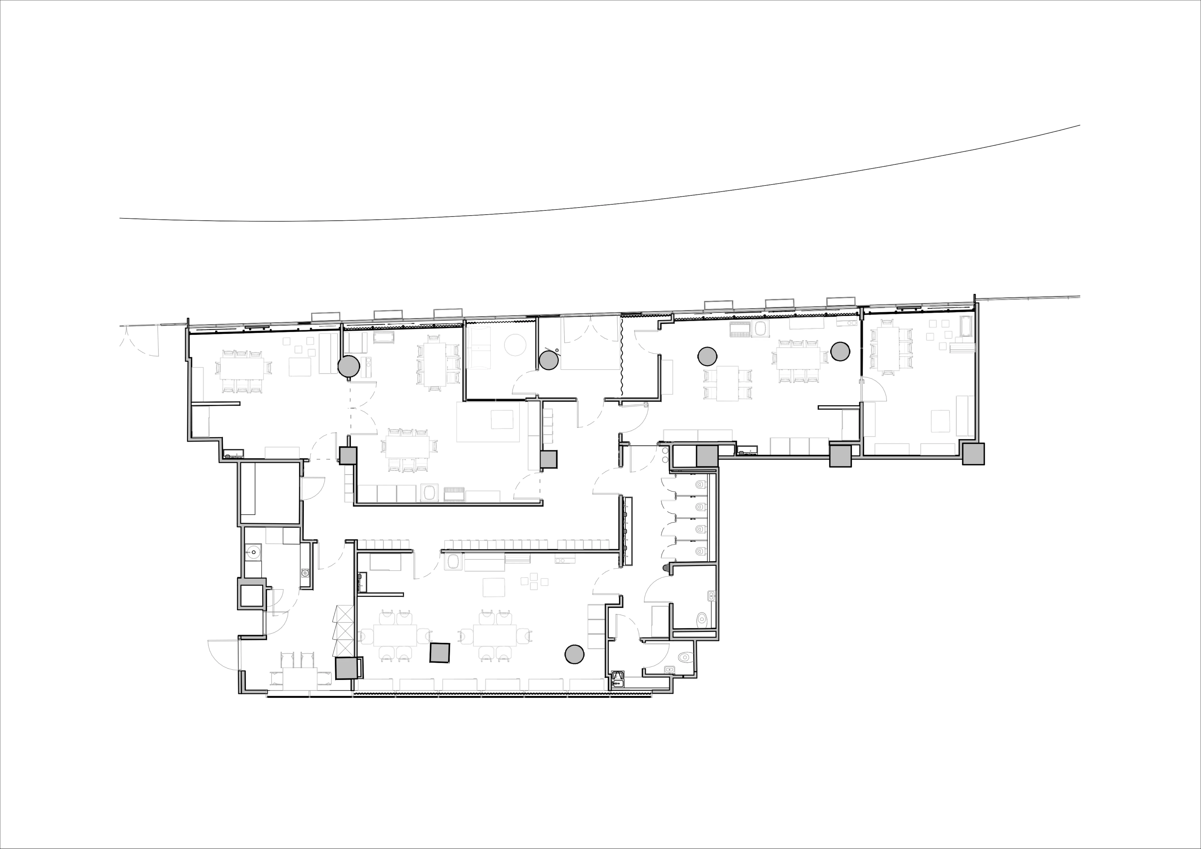
To deliver the new location quickly and cost effectively, we worked to carefully understand the existing space. Through this process we identified that much of the existing fit out could be repurposed to suit the nursery. One of the significant areas of focus was the reuse of the heating, ventilation, and cooling plant, in order to significantly reduce the cost and embodied carbon of the fit out. By testing the existing equipment to validate it, and then designing careful adaptations to work with the proposed designs, we were able to reuse all of the mechanical kit in the ceiling as a significant cost saving.


More than this, we actively designed in the re-use of everything from glazed partitions to allow light further into the space, to repurposing a kitchenette to form the plant-based kitchen for the nursery.Flooring, lighting, and sanitaryware were all designed to be re-used from the existing space. This allowed us to deliver the space in an 8 week build for under £121 per square foot.
With exciting extracurriculars, daily outings, and a thriving parent community, the programme of the space is as important to our designs as the physical aspects. This is highlighted in a display window showing rotating artwork and golden thread topics from the day to day curriculum of the space.




Client: MEplace
Location: Battersea, London
Budget: £340,000
Area: 260m2
Cost: £121/sqft
