Office S&M has completed the interior design for MEplace’s first city centre nursery, delivering the childcare brand’s joyful yet minimal space. The design promotes play, learning, and mindfulness in an environment tailored to children’s development. When we began collaborating with MEplace, they were already a flourishing brand with two established sites. However, they had faced challenges with the durability of previous designs and had concerns with spaces that didn’t fully align with their brand identity. Through close collaboration, MEplace and Office S&M have successfully created a new space that not only functions beautifully but also perfectly embodies the MEplace brand.
You can read more about how we work with educational clients here.


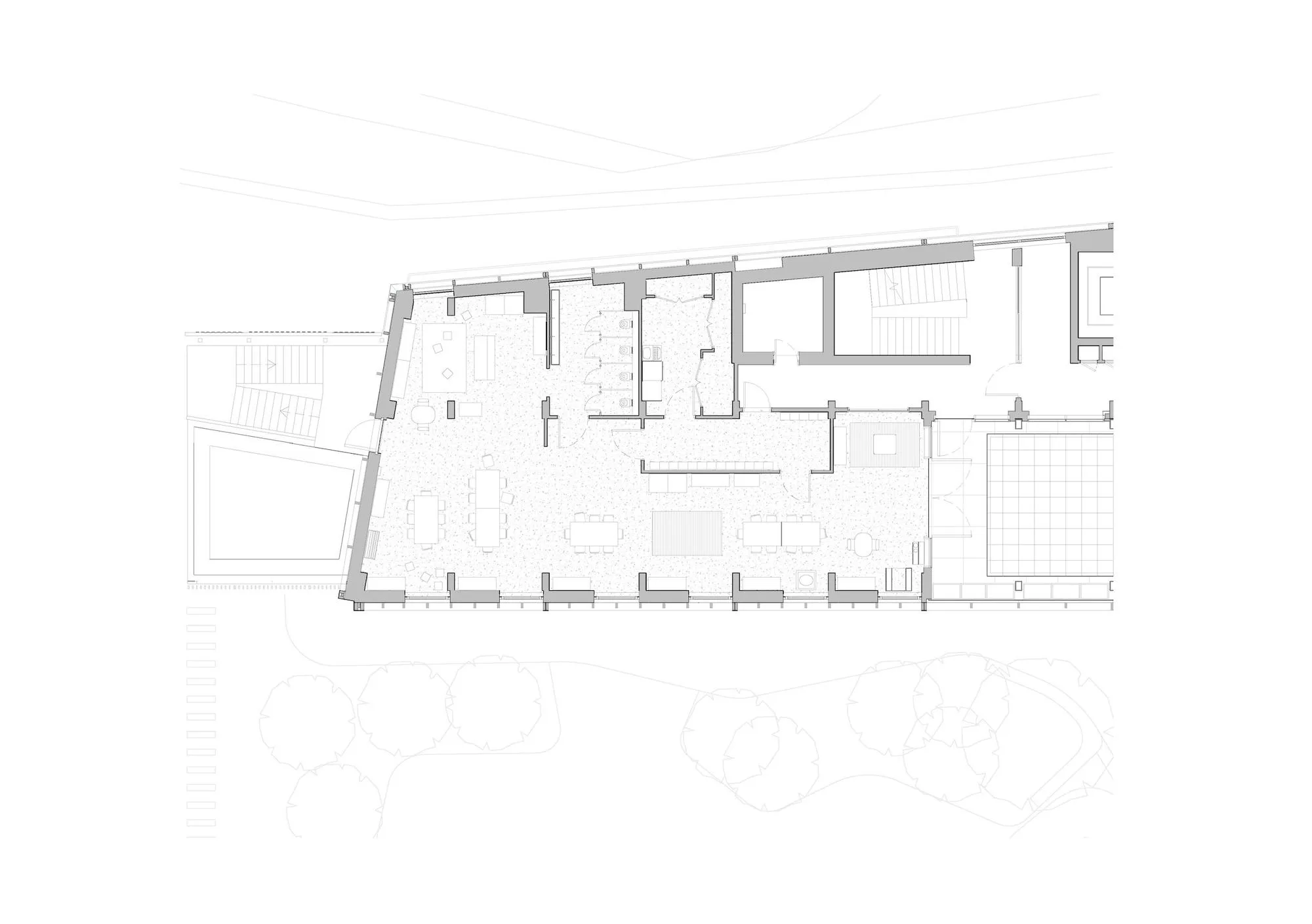
Office S&M worked collaboratively with MEplace throughout the design and construction of the nursery. The MEplace team were supported from the feasibility study through to construction by Office S&M’s architects and interior designers. Regular workshops with the MEplace education team ensured that the spaces were carefully planned to encompass learning zones and furniture to support the bespoke pedagogy of the nursery. By using 3D models and collaborative schedules, the interior design and furniture are meticulously arranged to support the nursery’s teaching methodology, while enabling future flexibility. The environment not only meets, but exceeds, the Early Years Foundation Stage Statutory Framework requirements, and each wing of the nursery offers direct access to storage, toilets, and open space.
MEplace is committed to the holistic education and wellbeing of children, a mission that is deeply embedded in our collaborative design for their latest nursery in King’s Cross. Central to this mission is the creation of spaces that encourage independent exploration and development. This is reflected in every detail of the new MEplace nursery, from a colour scheme and visuals that help children build a sense of self and community, to carefully scaled fittings that empower their independence.




Office S&M’s approach was guided by teachings from Maria Montessori, who described a child’s environment as their ‘third teacher’. With this philosophy in mind, Office S&M designed the new space as a learning tool — an idea developed through a series of in-depth workshops with the MEplace educational team. The design invites children to explore and develop their self-concept. For instance, each age group has a distinct colour scheme, delivered through pops of colour at child height, which encourages children to identify their own space and connect with peers. Meanwhile, the MEplace logo’s signature red is used for interactive elements, from hooks to handles, fostering children’s independence. By using neutral colours throughout the interiors, brighter colours are then employed to guide children. In this way, the brand’s strong online graphic identity has been brought to life in the physical space with functional elements that directly benefit children. This is delivered through Office S&M’s ‘functional colour’ approach, where colour theory is used to change the scale and improve the function of spaces.



The new nursery spaces have been designed with a calming colour scheme to make the interiors seem homely. A dado painted at child height makes the 3.7m tall rooms feel more intimate and comfortable for children. Each sink is ergonomically raised to the correct height for the specific age group it is serving, to promote independence. Furthermore, controls and security features have been positioned above children’s eyeline and reach. Cross-laminated timber ceilings and columns, paired with cork protectors, provide an abundance of natural materials. Each of these choices makes the space both comfortable and empowering for the children it is designed for.
A dedication to sustainability is one of the key elements that set MEplace apart, and this commitment is evident throughout the nursery. The fit out uses natural materials, from the timber structure to wooden furniture. Low-VOC paints and filtered ventilation deliver excellent air quality for little lungs. Water is also filtered, and children are provided with a plant-based menu of nutritious food. Each room is comfort-controlled to warm or cool the space as needed, since children will go from being active to sleeping. Finally, ample natural light is prioritised, with blinds to adjust the light throughout the day, while additional artificial light is tuneable in temperature. Each of these features contributes to the children’s wellbeing, and was integrated right from the project’s beginnings by drawing on Office S&M’s expertise in human-centric design.





Client: MEplace
Location: Kings Cross, London
Construction cost: £750,000
Gross internal area: 550m2
Cost: £1,363/sqm
Start on site: May 2024
Completed: August 2024
Number of places: 100 children
