We are working with local contractors to bring the derelict space back to life as a net zero carbon community space, which embraces circular economy principles. Once complete, the building will be operate by ReSpace Projects, a non-profit organisation committed to delivering social value for the community of Silvertown. ReSpace originally squatted the building in 2016 and opened up the building as The Craftory for local people. Now invited back, ReSpace have spent the first six months delivering programming while the design and planning process has been ongoing.


Built in 1887 by Sir Henry Tate for workers at his sugar factory on the other side of the road, the Institute has been a cornerstone of the Silvertown community. What began as a social hub and communal baths for sugar factory workers in the early 1900s, later served as a public library and hall during the mid-20th century, and eventually evolved into a pool hall, bar, and performance space before closing in the early 2000s.
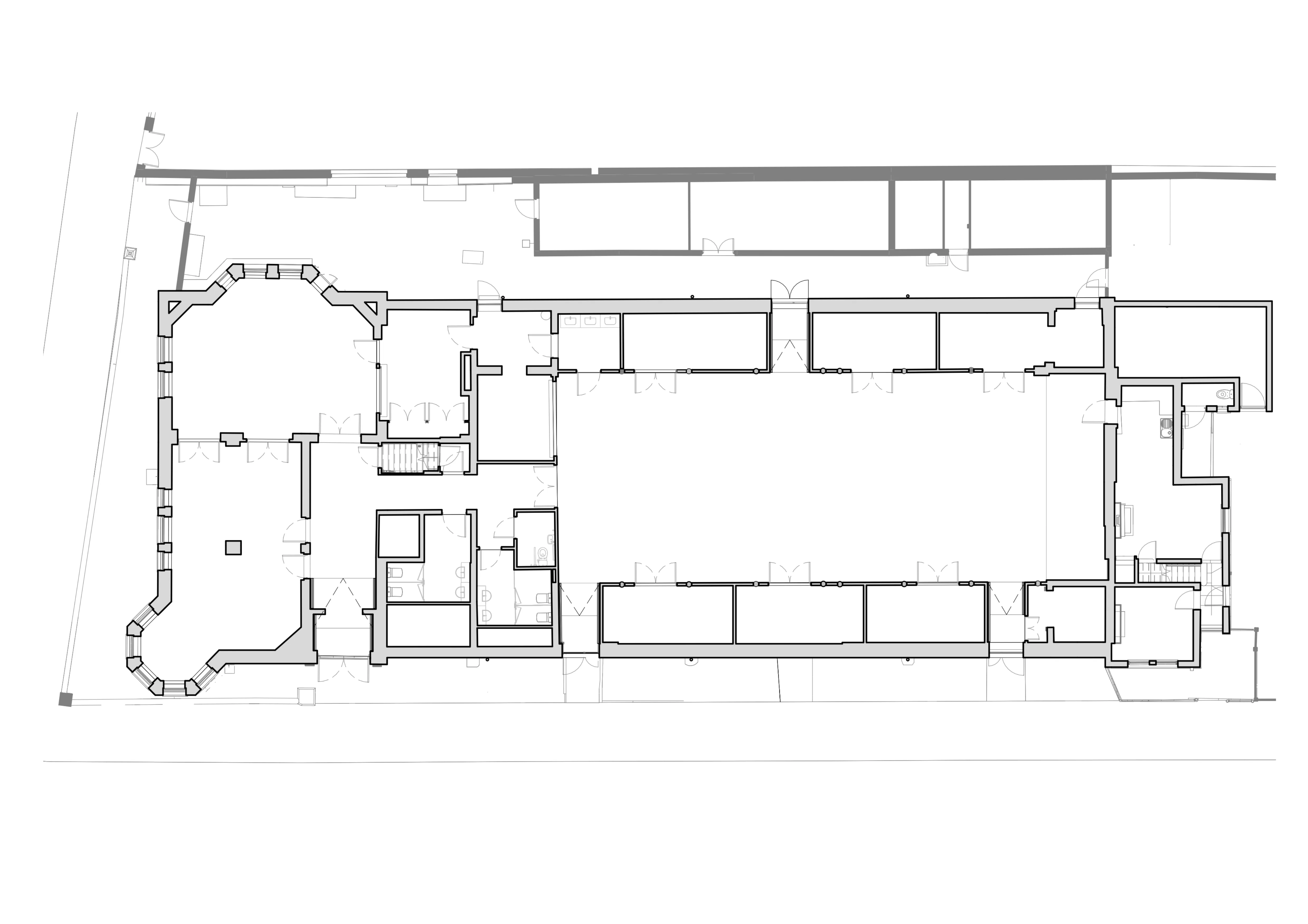
Loved by the people of Silvertown for generations, the building holds a rich and personal legacy for local residents that they have given us a personal insight into through stories and memorabilia. ReSpace and Office S&M are now working to restore the Institute back to its former glory and deliver a community asset for the people of Silvertown. The new proposal will include an enterprise hub, creative studios, workshops, kitchen, bar, event space and gardens for the community.




ReSpace focus on the re-use of existing buildings, and so the build of this new space uses reclaimed materials wherever possible. This includes mining the existing building, where the suspended timber floor structure will be used to repair rotten sections of the roof, through to the use of 20 tonnes of CLT which would otherwise go to waste to form durable walls for new workshop space. Everything from the lights to the kitchen sink have been reclaimed in partnership with Re:New who have brokered material supply.
The retrofit is a showcase in using natural and reclaimed materials to deliver on circular economy principles. For example, natural wood fibre insulation and lime plaster are used extensively around the masonry walls, roof and floor junctions to improve the thermal performance, airtightness, and breathability of the structure. The building’s net zero carbon operation will be achieved through solar panels and air source heat pumps, ensuring long term energy efficiency and operational affordability for community use.
If you’ve enjoyed this project, you can read about our other public projects here.









Location : Newham, London
Client: ReSpace
Funder: London Borough of Newham, LevellingUp Fund, Carbon Offset Fund, GFA
Construction cost: £1.3m
Gross internal area: 850m2
Cost: £1,530/m2
Start on site: September 2024
Completion: August 2025
